საცხოვრებელი სახლი დიღომში

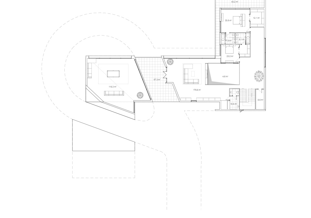
პირველი სართული

500 კვ.მ.
საერთო ოთხი, სამზარეულო, სამაყურებლო დარბაზი, სვ. წერტები,
ბიბლიოთეკა, სტუმრის აპარტამენტი.

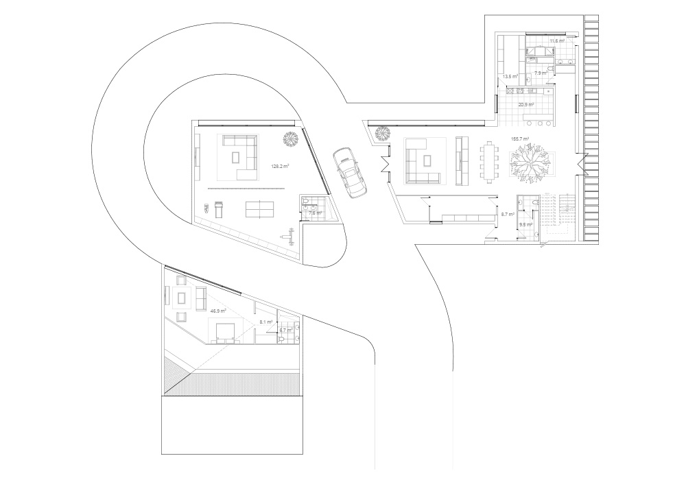
მეორე სართული

300 კვ.მ.
2 საძინებელი, სვ. წერტილები, სამაყურებლო ოთახი.

მდებარეობა

სოფელი დიღომი. თბილისი

დაგვიკავშირდით

+995 577 51 66 22
+995 598 10 88 70

ჩვენ გემსახურებით

მიიღეთ უმაღლესი ხარისხის მომსახურეობა თავისი საქმის პროფესიონალებისგან