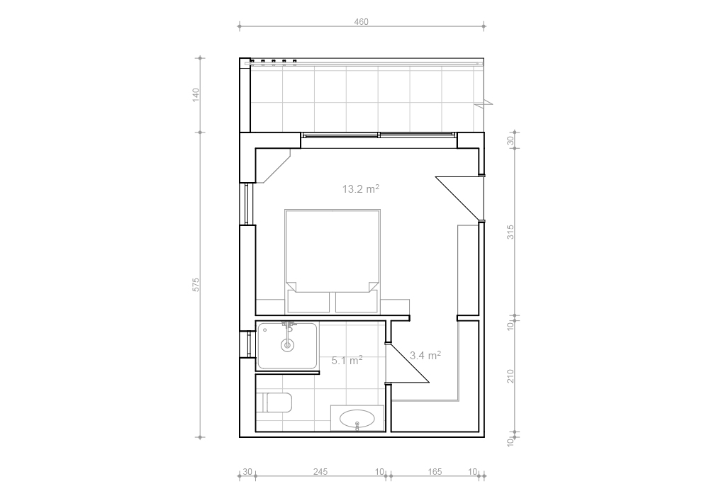
საძინებლის ინტერიერი საძინებელი 22 კვ.მ. საძინებელი, გარდერობი, სვ. წერტილი. მდებარეობა სოფელი ნავდარაანთკარი. მცხეთა დაგვიკავშირდით +995 577 51 66 22 +995 598 10 88 70 Facebook-f Pinterest Instagram Youtube ჩვენ გემსახურებით მიიღეთ უმაღლესი ხარისხის მომსახურეობა თავისი საქმის პროფესიონალებისგან ახლავე დაკავშირება