საცხოვრებელი სახლი ბაგებში
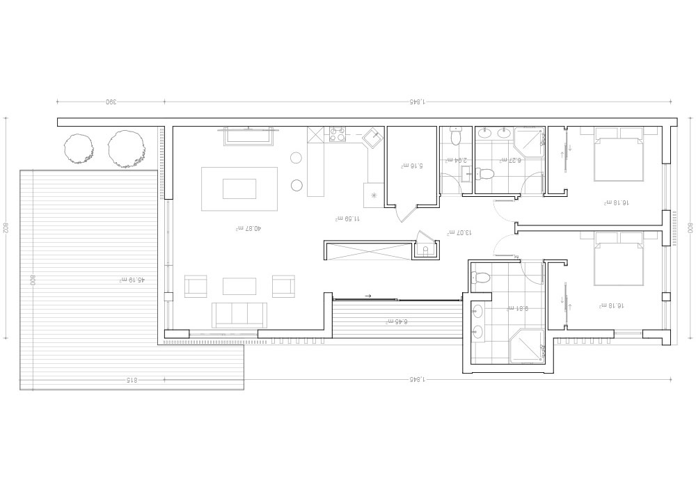
პირველი სართული
150 კვ.მ.
საერთო ოთხი, სამზარეულო, 2 საძინებელი, 3 სვ. წერტილი, საქვაბე, ვერანდა.
მდებარეობა
ბაგები. თბილისი
დაგვიკავშირდით
+995 577 51 66 22
+995 598 10 88 70
ჩვენ გემსახურებით
მიიღეთ უმაღლესი ხარისხის მომსახურეობა თავისი საქმის პროფესიონალებისგან









