საცხოვრებელი სახლი დიღომში

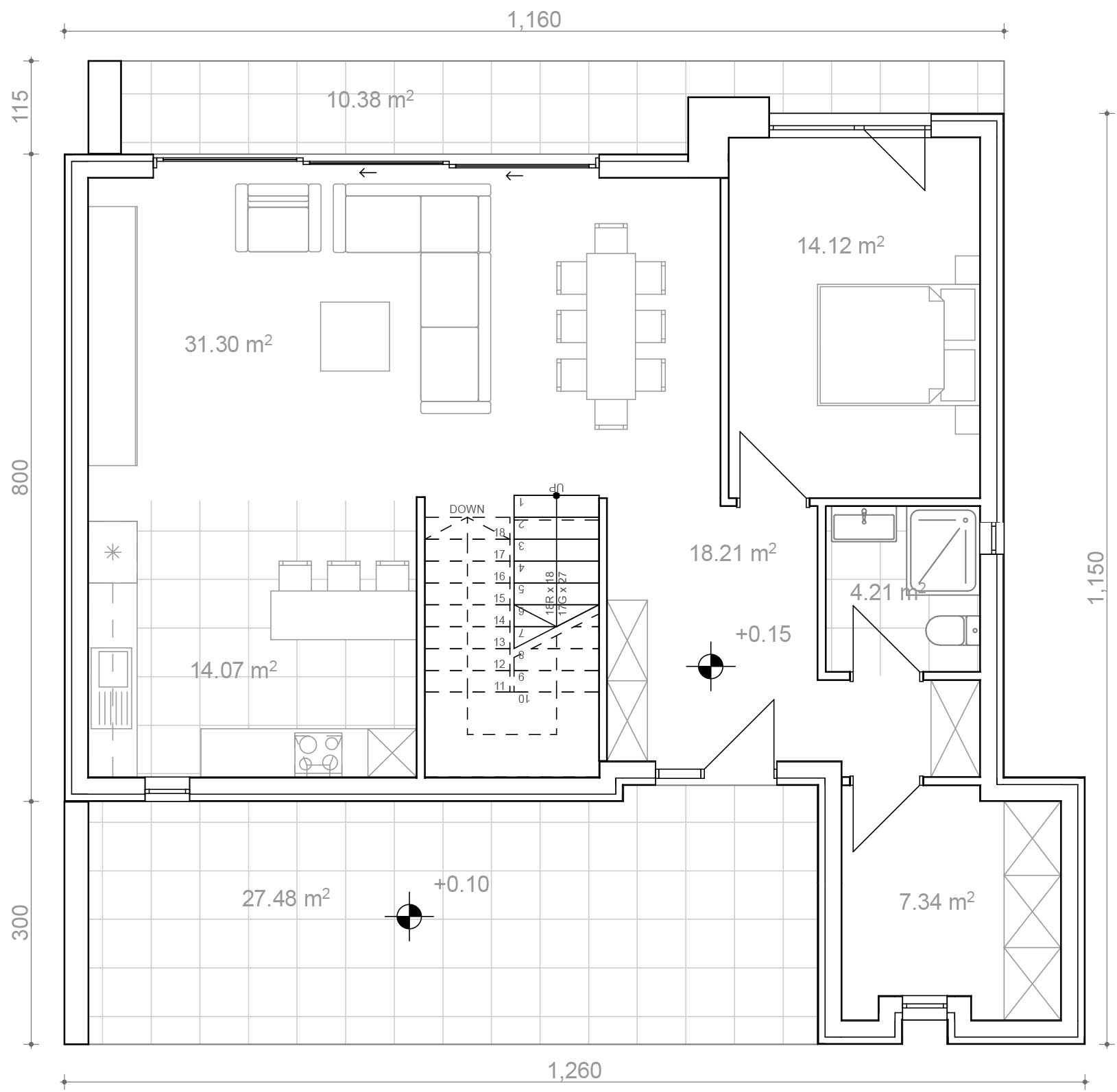
პირველი სართული

140 კვ.მ.
საერთო ოთხი, სამზარეულო, საძინებელი, სვ. წერტილი.
ვერანდა.

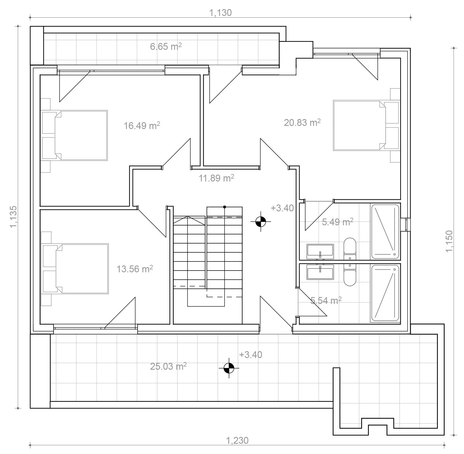
პირველი სართული

120 კვ.მ.
3 საძინებელი, 2 სვ. წერტილი, ვერანდები.

მდებარეობა

სოფელი დიღომი. თბილისი

დაგვიკავშირდით

+995 577 51 66 22
+995 598 10 88 70

ჩვენ გემსახურებით

მიიღეთ უმაღლესი ხარისხის მომსახურეობა თავისი საქმის პროფესიონალებისგან